Propiedades a comparar

Descripción

Chalet situado a escasos metros de Playa América, a la que se puede acceder andando y disfrutar de una de las playas más bonitas de las Rías Baixas.
Parcela privada de 379 m2 cuenta con una distribución muy acertada en sus tres plantas, lo que le permite tener un amplio salón comedor, cocina con electrodomésticos, 5 dormitorios, 5 baños, garaje independiente y una estupenda piscina. La rampa de acceso al interior de la vivienda le aporta una extraordinaria comodidad, haciéndolo accesible tanto para niños como para nuestros mayores. Calefacción y agua caliente de gas natural.

 

Detalles

  • Icon
    5
    Habitaciones
  • Icon
    5
    Baños
  • Icon
    Superficie construida
    268 m²
  • Icon
    Superficie parcela
    379 m²
  • Icon
    Superficie garaje
    15
  • Icon
    1
    Garajes
  • Icon
    Entrega estimada
    2022-11-10

Planos de las plantas

  • PLANTA BAJA
  • PLANTA PRIMERA
  • BAJOCUBIERTA
  • PLANO DE LA FINCA
img

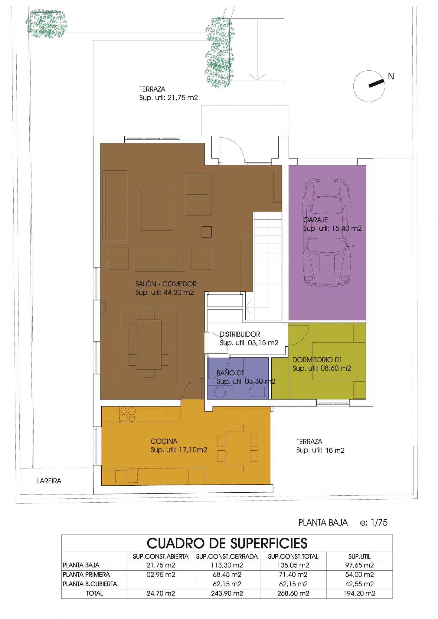
PLANTA BAJA

Precio:

Chalet en Playa América. En la planta baja tenemos el salón-comedor, la cocina con office, habitación, baño, garaje, terrazas y piscina. La rampa de acceso al interior de la vivienda le aporta una extraordinaria comodidad, haciéndolo accesible tanto para niños como para nuestros mayores.

  • Icon
    Estancias
    6
  • Icon
    Baños
    1
  • Icon
    Superficie
    135
img

PLANTA PRIMERA

Precio:

  • Icon
    Estancias
  • Icon
    Baños
  • Icon
    Superficie
img

BAJOCUBIERTA

Precio:

  • Icon
    Estancias
  • Icon
    Baños
  • Icon
    Superficie
img

PLANO DE LA FINCA

Precio:

  • Icon
    Estancias
  • Icon
    Baños
  • Icon
    Superficie

Eficiencia energética

Clase energética
E
Consumo de energía
232,2
Emisiones
49,1
  • A+
  • A
  • B
  • C
  • D
  • 232,2 | Clase energética E
    E
  • F
  • G

¿Desea más información sobre esta propiedad?

¡Hablemos!

O solicite una visita

Sus datos

He leído y acepto la Política de Privacidad.

PROTECCIÓN DE DATOS

Responsable: Promociones Luis Barros, S.L.
Finalidad: responder a su consulta y prestarle servicio.
Legitimación: su consentimiento.
Destinatarios: los datos no se cederán a terceros salvo por obligación legal, necesidades de la actividad profesional o subcontratación de parte del servicio.
Derechos: entre otros, a acceder, rectificar, limitar y suprimir sus datos.
Información adicional: Política de privacidad.

LA MERA PETICIÓN NO IMPLICA UNA CITA DEFINITIVA; LE CONFIRMAREMOS SIEMPRE SU CITA POR TELÉFONO O CORREO ELECTRÓNICO.

ANTERIOR

Chalet nº 7A

SIGUIENTE

URBANIZACIÓN VALLADARES – VIGO

error: Este contenido está protegido